Homes
Modern Homes
Commercial
E-mail Us
Home
Randy L Barnes, AIA
UNBUILT
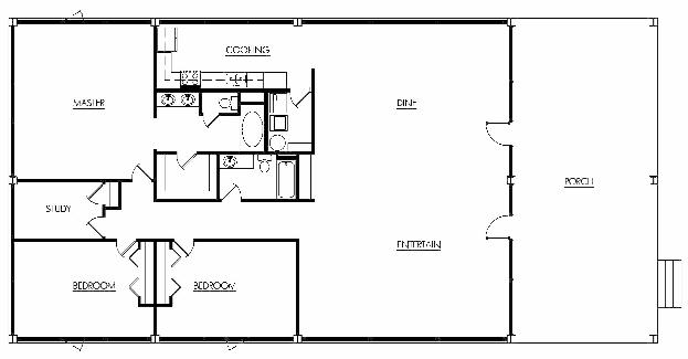
HOUSE 3
2,610 SF

Inspired by the
famous Farnsworth
House of Mies van
der Rough, this
design is a
classical piece of
Modern
architecture
rendered in copper
and sand.