Homes
Modern Homes
Commercial
E-mail Us
Home
Randy L Barnes, AIA
UNBUILT
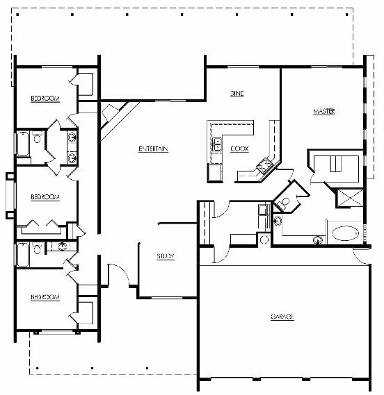
HOUSE 2
2,655 SF

An example of
the "Thin Shell"
style rendered in
contemporary
desert materials
and colors